Architecten
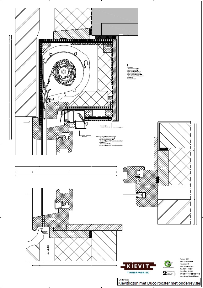
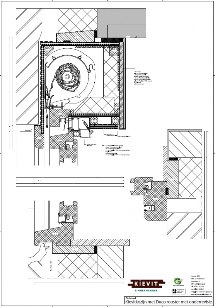
Dagelijks melden architecten zich ROMA, om advies vooral over (inbouw) rolluiken. Belangrijk is, dat wij niet alleen de producten, maar ook de kennis in huis hebben om hun van het juiste advies te voorzien. Vaak is de beschikbare ruimte niet voldoende om er een deugdelijk product in te integreren. Daarom is het juist zo belangrijk, dat architecten, op voorhand te weten, welke ruimte er in het muurwerk gespaard moet worden om een perfect eindresultaat te bewerkstelligen. Naast rolluiken, kunnen wij ook architecten ondersteunen bij het integreren van screens, buitenjaloezieën en garagedeuren.
ROMA en Architecten
Wij bij ROMA willen zeker niet beweren, dat wij alle wijsheid in pacht hebben, maar door meer dan 30 jaar ervaring en fouten maken weten wij in ieder geval wel hoe het zeker niet moet. Wij hebben dat leergeld betaald en willen daar architecten graag van mee laten profiteren.
ROMA heeft in Burgau Duitsland een Architecten-Forum gebouwd. Hier kunnen lezingen voor archtecten gegeven worden en zijn er een 3-tal mensen fulltime bezig architecten te informeren en te ondersteunen.
Het ondersteunen van architecten gaat middels een boekwerk Kompendium of digitaal via onze website. Wij hebben het geluk, dat architecten, die ons hebben gevonden via www.zonwering.nl andere architecten attent maken op onze mogelijkheid om architecten te ondersteunen.
Wilt u contact met ons?
